Projeto realizado para um casal com dois filhos adolescentes que após realizar o sonho de comprar uma casa nova, linda e enooorme, dos anos 50 resolveram realizar uma reforma para deixá-la mais atual. Fui escolhida junto com uma equipe de arquiteto, engenheiro, empreiteiros, etc, para essa missão.
Foram tantas conversas que acabamos ficando amigas rs! Uma pessoa muito querida que não vejo a hora de ficar sabendo que a obra terminou e que já está morando lá!
Vou postar aos poucos o que pensamos para cada espaço porque é muita coisa! Só de banheiros são 4, e olha que um foi transformado em despensa!
Os escolhidos para serem os primeiros foram sala de estar e jantar.
 |
| Planta expressiva. Passando por esta porta de correr existe a área de lazer com a piscina e o espaço gourmet. |
 |
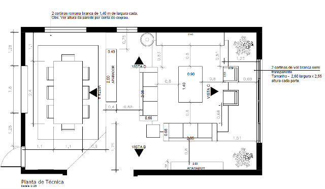
| Layout técnico com medidas de mobiliários e circulação. |
 |
| Desejavam um espaço para receber bem os amigos. |
 |
| Desejavam uma cozinha integrada com a sala mas de forma sutil. |
 |
A sala possuía um lindo piso de madeira mas como já estava gasto em algumas área eles resolveram trocá-lo por porcelanato.
Então parte dele será reaproveitado no painel da Tv. |
 |
| Admiradores das obras do artista plástico Gonçalo Ivo. |
 |
| Espaço tranquilo, perfeito para repor as energias! |